VUOKRATTU
Lahti, Ahtiala - 2H + K + KPH + VH + parveke
Asunto oy Lahden Ahtialanpolku 2 sijaitsee rauhallisessa ja lapsiystävällisessä Ahtialan kaupunginosassa. Taloyhtiö koostuu kolmesta kolmikerroksisesta kerrostalosta, jotka lämpiävät kaukolämmöllä. Alueella on kattavat peruspalvelut, kuten päiväkoti, peruskoulu, terveysasema, apteekki ja kaksi markettia. Takaovelta pääset mukavasti ulkoilemaan ja vesistön ääreen. Oman auton pysäköinti onnistuu taloyhtiön jonotusperusteisilla autopaikoilla. Huoneistoilla on omat varastotilat, ja taloyhtiöstä löytyy myös sauna- ja pesutilat, pesutupa sekä ulkoiluvälinevarasto. Vuokraan sisältyy DNA taloyhtiönetti.
Lahti, Ahtiala – 2H + K + KPH + VH + parveke
| PERUSTIEDOT: | |
| Sijainti: | Ahtialanpolku 2 E, 15300 Lahti |
| Vuokratyyppi: | Vuokrahuoneisto |
| Tyyppi: | Kerrostalo |
| Kerros: | 2/3 |
| Vapautuminen: | VUOKRATTU |
| Vuokrasopimus: | Toistaiseksi |
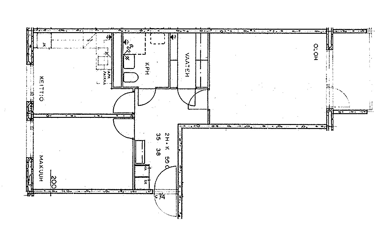
| Kuvaus: | 2h+k+vh+p |
| Huoneiden lukumäärä: | Kaksio |
| Rakennusvuosi: | 1976 |
| Asuinpinta-ala: | 59 m² |
| Kokonaispinta-ala: | 59 m² |
| Tilat ja varustelu: | Varasto, pesutupa, ulkoiluvälinevarasto, sauna. Yhtiössä ei ole hissiä! |
| Yleiskunto: | Hyvä |
| Erityisiä ehtoja: | Irtisanomisajan ensimmäinen mahdollinen alkamisajankohta on 11 kk hallinnan luovutuksesta. |
| Vuokralainen sitoutuu ottamaan ja pitämään voimassa kotivakuutuksen vastuuvakuutuksella. | |
| Asunnossa ei saa tupakoida. | |
| Ei lemmikkejä. | |
| Luottotiedot tarkistetaan. | |
| Lisätietoja: | Autopaikka 10€/kk kylmäpaikka, 16€/kk sähkötolpallinen paikka, Sauna 12€/kk, Vesimaksu 22€/hlö/kk. |
| KUSTANNUKSET: | |
| Vuokra: | €/kk |
| Vuokranmaksupäivä: | Kuluvan kuun 2. päivä |
| Vakuus: | Kahden kuukauden vuokra |
| Vesimaksu: | 22€/hlö/kk |
| Autopaikka: | 10€/kk kylmäpaikka, 16€/kk sähkötolpallinen paikka |
| Lisätietoja kustannuksista: | Vuokralainen tekee sähkösopimuksen ja sitoutuu ottamaan kotivakuutuksen. |
| KOHTEEN KUVAUS: | |
| Lemmikit sallittu: | Ei sallittu |
| Tupakointi sallittu: | Ei sallittu |
| Auton säilytys: | Autopaikka mahdollista vuokrata |
| Asuntoon kuuluu: | |
| TV-antennit: | Kaapeli-tv-liitäntä |
| Tietoliikenneyhteydet: | DNA:n taloyhtiönetti |
| Lämmitysjärjestelmä: | Kaukolämpö |
| MATERIAALIT: | |
| Rakennusmateriaali: | Betoni |
| Keittiön lattia: | Muovi |
| Keittiön seinät: | Maalattu |
| Olohuoneen lattia: | Muovi |
| Olohuoneen seinät: | Maalattu |
| WC/kylpyhuone lattia: | Massa |
| WC/kylpyhuone seinät: | Kaakeloitu |
| PESUTILAT JA WC: | |
| Tilat ja varustelu: | Kylpyhuone, pesukoneliitäntä |
| WC lukumäärä: | 1 |
| KEITTIÖ: | |
| Keittiön tyyppi: | Keittiö |
| Keittiön varusteet: | |
| Liesi: | Sähköliesi |
| Jääkaappi ja pakastin: | Jääkaappi-pakastin |
| TALOYHTIÖ: | |
| Taloyhtiön nimi: | Asunto Oy Ahtialanpolku 2 |
| Vastuu kiinteistön hoidosta: | |
| Isännöitsijä: | |
| Energiatodistus: | D 2018 |
